WWF Office Walkthrough

A non-profit sustainable forward company is establishing a new office branch in Philadelphia. This adaptive-reuse project aims to keep the brands identity throughout the design and create an overtly sustainable design that will benefit the employees and the environment
Programs used: Revit (BIM), Enscape (Rendering), Photoshop, Illustrator (Post-Production), Procreate (Site Analysis), MattoBoard (Materials Board)

World Wildlife Fund Logo

WWF UK Headquarters

The Non-Profit organization the office is designed for is the World Wildlife Fund. Their mission is mitigate the degradation of the Earth's environment and to build a future in which humans live in harmony with nature. Some sustainable goals are to promote sustainable food choices from local farmers, and conserve threatened wildlife and promote biodiversity

Surrounding Site Context (Building highlighted in blue)

Site Analysis

The site for the project is located in the Naval Yard in South Philadelphia. An approx. 12,000sqft single level building made of masonry with steel trusses and arched windows, with an adjacent outdoor dog park in project scope

Process Sketch 1

Process Sketch 2

Concept Statement: Through the use of daylighting strategies, the office space will give users ample amounts of natural light, while respecting the natural human circadian rhythm. The abundance of natural light reduces the reliance on artificial lighting, therefore, cutting energy costs, reducing light pollution and creating a healthier environment for the users

Sustainable Concept Diagram

 Mood Board

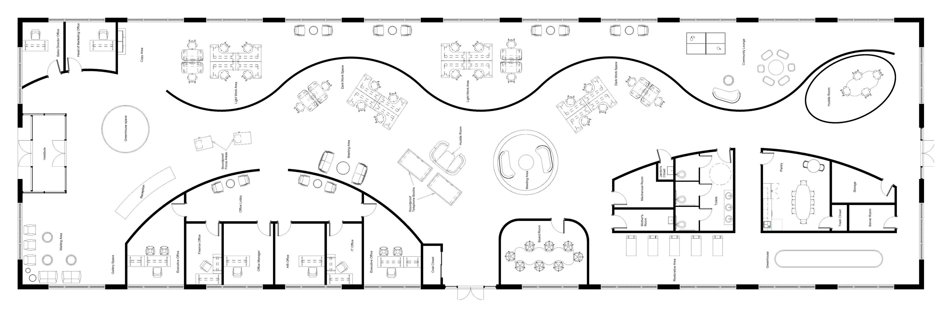
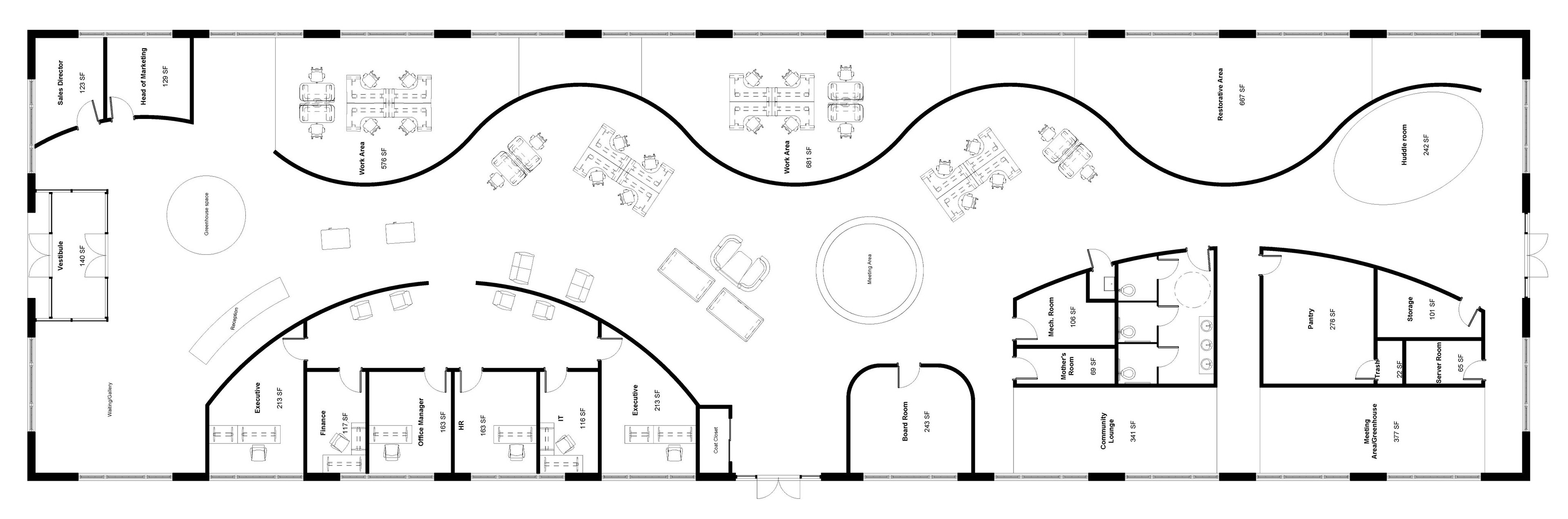
The space is divide by a curvilinear translucent screen wall that allows natural light from the east facade to filter through, creating a dark and light work area to give employees options for optimal working conditions

Process Floor Plan 1

Process Floor Plan 2

Process Floor Plan 3

Site Plan Scale: 1/32" = 1'-0"

Floor Plan Scale: 3/32" = 1'-0"

Huddle Room Perspective

"A" Longitudinal Section Scale: 1/8" = 1'-0"

"B" Transverse Section Scale: 1/8" = 1'-0"

Reflected Ceiling Plan Scale: 3/32" = 1'-0"

Dark Work Area Perspective

Entry Area Collage

Office Area Collage

Dark Space Perspective

Incorporating sustainable initiatives outlined in organizations like LEED and WELL, as well as Biophilic patterns can be found throughout the project. These important initiatives are highlighted in the plan below

LEED and WELL Sustainable Plan

Code Plan and Human Behavior Notes

Light Work Area Perspective

Community Lounge Perspective

Final Board 1

Final Board 2

Physical Materials Tray

Final Presentation Photo

You may also like

Back to Top