With the threat of Climate Change on the rise, a collaborative group of architecture and interior design students (3 arch, 1 int) set to tackle the extreme climate of water, with growing problems like the rise of flooding and sea levels. This three week project aims to research innovative and sustainable strategies to the problems while designing a residential unit and research lab for scientists to research mitigation strategies of this extreme climate
Programs used: Revit (BIM), Enscape, Lumion (Rendering), Photoshop, Illustrator (Post-Production)

Site Location

The site is located on the south end of Sapelo Island, Georgia, USA. Sapelo Island is mostly marshland with very little residential inhabitance, making it a good location for the extreme water climate. The Island is abundant of Methane-eating Microorganisms in which the scientists will research and collect data to help in the mitigation of Climate Change

Site Plan

Boardwalk Path

A boardwalk that is raised on pillars connects the two buildings and to the ocean for quick collection of the Microorganisms. The boardwalk is raised six feet above ground for extreme flooding situations

Building Structure and Form

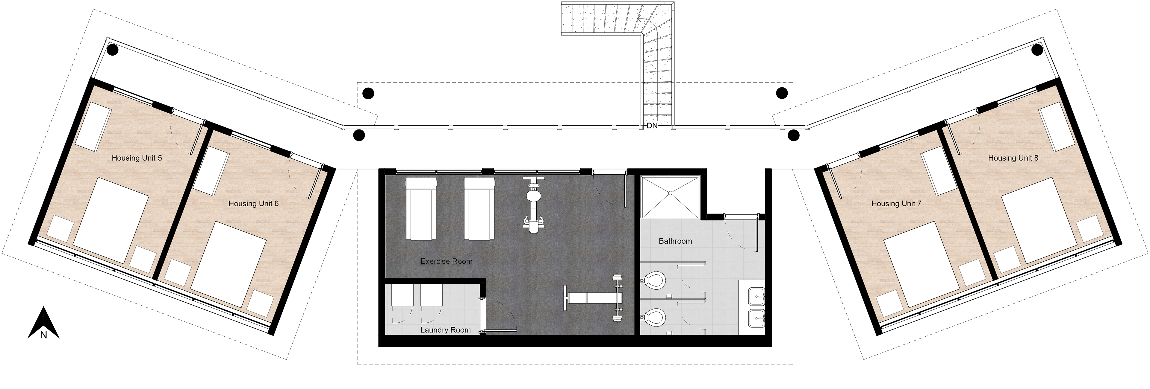
1st Floor Plan Residential Building

2nd Floor Plan Residential Building

1st Floor Plan Research Lab Building

2nd Floor Plan Research Lab Building

Longitudinal Section A

An important aspect of the design was to carefully consider sustainable strategies and ways to mitigate energy usage. No AC would be used, only passive techniques for cooling which are illustrated below

Residential Building Sustainable Diagram

Research Lab Building Sustainable Diagram

Residential Kitchen Perspective 5:30pm

Research Lab Perspective  4:30pm

Exterior Perspective of Research Lab

Exterior Perspective of Residential Building

Final Board

You may also like

Back to Top