DMR Architects
Construction drawings and emergency egress plans were drawn to help with a masonry repair project at the Robert L. Craig school in Moonachie, NJ. Egress plans were used to prove to the fire department that emergency egress was still up to code while one exit was closed due to construction. (All work done in AutoCAD)

Temporary Egress Plan

Exterior Elevation A

Exterior Elevation B

Exterior Elevation C

Construction Detail Section A

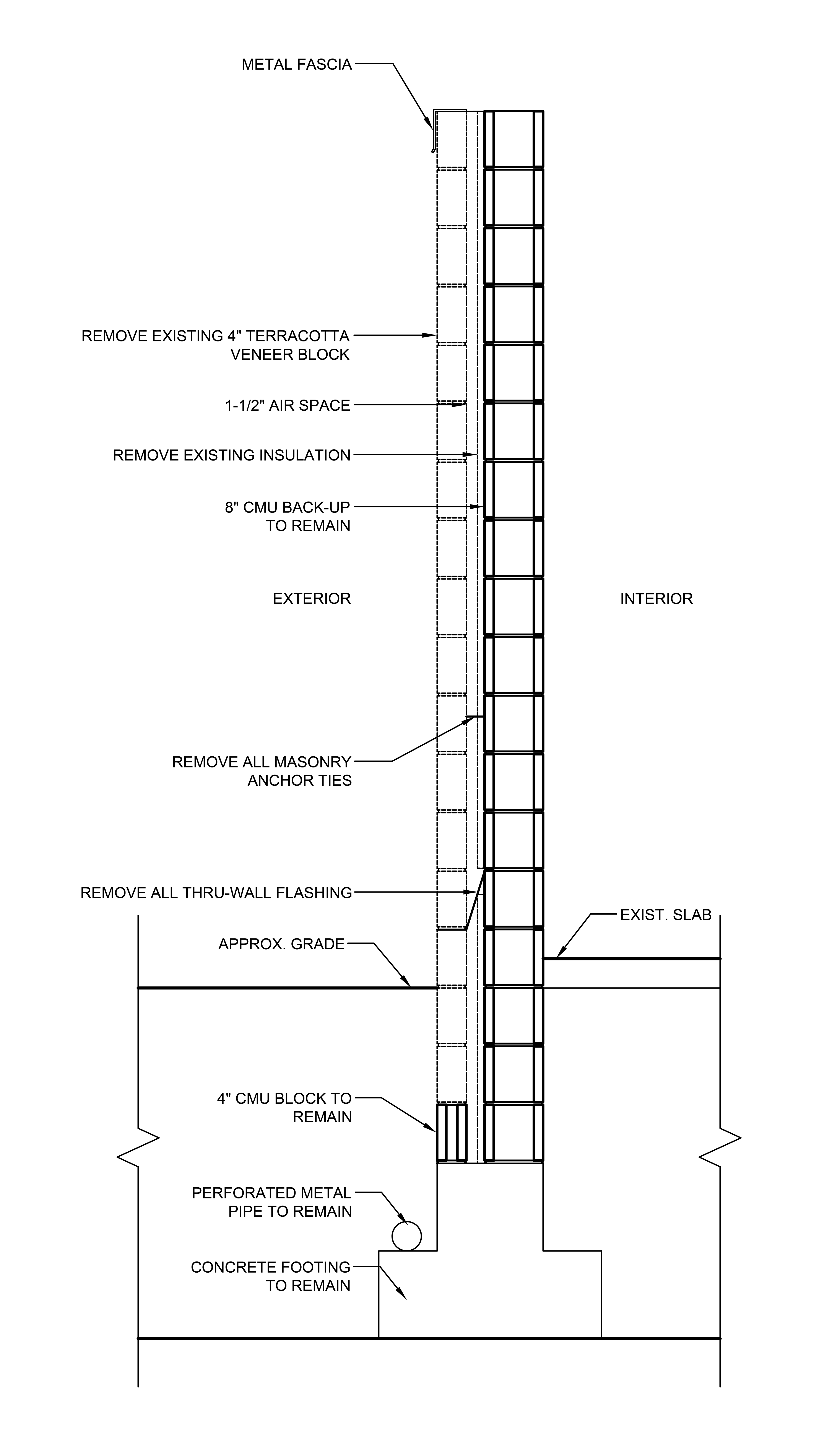
Demolition Detail Section A

Construction Detail Section B

Demolition Detail Section B

Construction Detail Section C

Demolition Detail Section C

You may also like

Back to Top